Sklon vjezdu do garáže - rady a tipy

Zdravim, chtel bych se s vami poradit o svem dilematu ohledne toho, jaky sklon a prevyseni mate nebo jste resili, a zda je podle vas tento sklon pripustny a bude se mi dobre najizdet i vyjizdet. Od komunikace po garaz je delka 8,5m sikmo, prevyseni 93cm a sklon tedy nejakych 10,9%. Predem dekuji za jakoukoliv odpoved. M.
Odpovědět
Je to zvládnutelné, ideálně pokud bude poté rovinka, kde bude stát auto (aby se člověk nemusel strchovat o brzdy). Dělali jseme i 12% sklon. Na 6m převýšení 75cm a pak 6m stání ve 2%. Není to ideál ale není to problém.
Odpovědět
To je celkem bezpečný a použitelný sklon pro osobní auto, běžně se v garážích a příjezdech doporučuje do 12 %, někdy i do 15 %, pokud není problém s odvodněním nebo ledem.
Odpovědět

Odpověď na příspěvek od tomaskucera55:

Je to zvládnutelné, ideálně pokud bude poté rovin…
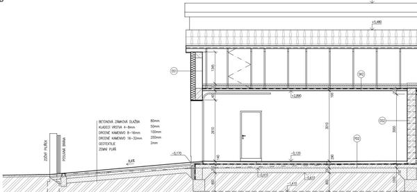
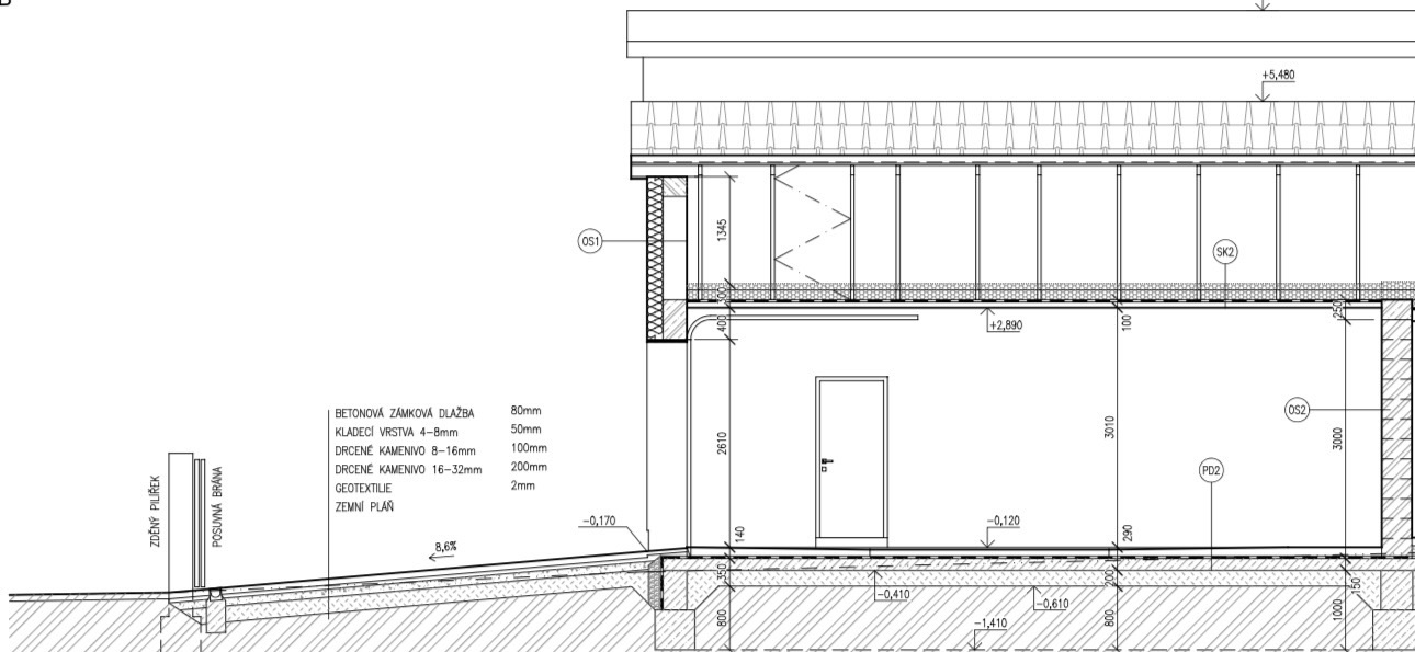
@tomaskucera55 Super diky za odpoved, auta parkovat pred garazi nebudou, v garazi je rovina. Mam stach aby to nebylo moc takovy uhel, kazdopadne jestli rikate, ze to neni idelani, ale je to zvladnutelne. Puvodne mame sklon nejakych 8,6% ale chci zvednout zakladovku o 1 radu ZB kvuli terenu, ale tim mi nabiha sklon na vjezdu. Je to docela brouk v hlave.
Odpovědět
Profilova fotka
čerstvý poznatek, pokud můžeš tak to stání srovnej. Za cca 4roky vyjíždění z velice mírného svahu jsme odrovnali spojku a je jedno jestli jsme najížděli popředu, nebo couvali. Svah byl jen na to stání. Vyrovnal jsem ho až letos na jaře a je znát doba, kdy má člověk sešláplou spojku.
Odpovědět

Odpověď na příspěvek od ozzy77:

čerstvý poznatek, pokud můžeš tak to stání srovne…
@ozzy77 budu parkovat na rovine v garazi, nikoliv na prijezdovce ktera bude pod sklonem. V garazi mam rovinu. Doufam ze jsme se pochopili. Ale diky za tip.
Odpovědět
Profilova fotka

Odpověď na příspěvek od mrseda:

@ozzy77 budu parkovat na rovine v garazi, nikoliv…
@mrseda jo takhle, to je ok
Odpovědět

Odpověď na příspěvek od ozzy77:

@mrseda jo takhle, to je ok
@ozzy77 jak rikam, mam strach z tech 11-12% ab to nebylo prilis. Zase si rikam lepsi mit dum zaroven s terenem nez ho mit utopeny a bohuzel asi bude prijezdovka strmejsi.
Odpovědět

Odpověď na příspěvek od mrseda:

Zdravim, chtel bych se s vami poradit o svem dile…
@mrseda Dle norem (ČSN 73 6110 – Projektování místních komunikací a ČSN 73 6056 – Garáže a odstavné a parkovací plochy silničních vozidel) je řešen sklon ramp takto: - maximální podélný sklon rampy v garážích se uvádí 15 %, výjimečně až 18 %. - u vjezdu z veřejné komunikace je doporučený maximální sklon 12 %. Takže 10 % sklon je zcela bezproblémový a plně v normě – většina osobních aut to zvládá bez potíží. Takže klid. 😃
Odpovědět

Odpověď na příspěvek od tomaskucera55:

Je to zvládnutelné, ideálně pokud bude poté rovin…
@tomaskucera55 po konzultaci s projektantem jsme se dostali na 76cm prevyseni na 8m tedy nejakych 9,8% (moje chyba spatne jsem si to spocital) a stejne mu to prijde moc a radsi by udelal odskocenou podlahu v garazi od zbytku obytne casti, aby sklon nebyl tak velky. Tak ja nevim 🙃
Odpovědět

Odpověď na příspěvek od mrseda:

@tomaskucera55 po konzultaci s projektantem jsme …
@mrseda nechapu, co řešíš ... máme 80 cm na 8 m a bez problému... a viděl jsem spoustu baráku, kde mají daleko větší sklon...
Odpovědět
1
Pro přidání příspěvku se musíte přihlásit.
Přesunutím fotek můžete změnit jejich pořadí

Nenašli jste co jste hledali?