WC dveře a umyvadla - návrhy a dispoziční řešení

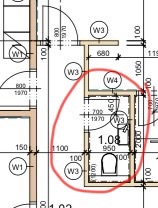
Zdravím, řešíme, zda dispozice s dveřmi do WC bude v pohodě, či ne. Posílám nákres, důležité je pro nás najít takové umyvadlo, aby si v něm člověk opravdu umyl ruce, ale možná by se nám to mohlo podařit nějakým hlubším tenkostěnným oválným umyvadlem s rozměrem např 28x40 cm na malou desku. Ven bychom je otevírali do chodby 110, bohužel je to v místě, kde se bude opravdu procházet - od vchodu a pokojíčku do obýváku. Nemáte někdo podobnou dispozici WC? Moc by mi to pomohlo. Pripadne fotky. Zasouvací dveře jsme prozatím zavrhli, jednak hluk/pach a zároveň když si představím, že je pokaždé otevřu/zavřu a pak při odchodu znovu, zas taková paráda u tak frekventované místnosti mi to nepřijde. Děkuji moc.
Odpovědět

Odpověď na příspěvek od shopgirl_l:

Zdravím, řešíme, zda dispozice s dveřmi do WC bud…
@shopgirl_l k rozmeru umyvatka: mame presne tak velke na wc a i u vas by to dle nacrtku melo byt v poho. A hl. je to velikost,kdyz uz se v nem skutecne pohodlne a bez cakani kolem daji umyt ruce. A mas spravny postreh k pojezdovym dverim, obyc.otevreni i zavreni je velmi komfortni a rychly proces oproti tomu,kdyz bys musela xkrat denne soupat dvermi na wc tam a zase zpet.
Odpovědět

Odpověď na příspěvek od catle:

@shopgirl_l k rozmeru umyvatka: mame presne tak v…
@catle Děkuji za zprávu :)
Odpovědět
1
Pro přidání příspěvku se musíte přihlásit.
Přesunutím fotek můžete změnit jejich pořadí

Nenašli jste co jste hledali?