Přesun kuchyně do obýváku

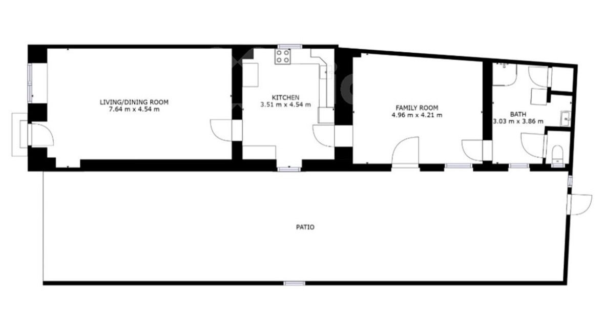
Ahoj, Potřebujeme v domě přidat další místnost - dětský pokoj. Dům je starý a je to obdélník. Jediné co je možné: kuchyni přesunout do obýváku a z kuchyně vznikne nový dětský pokoj. ALE! Jak to udelat s odpady atd? Dalsi vec jsou slabé jističe takže do obývaků zesílit jističe. Předělával jste někdo takhle? Jiná možnost není a zmenšovat obývak na dvě místnosti, mi přijde škoda. A pak mít obývak z ložnice bude mrňavé. Jinak dvorek je cca 100m2 takže tam přístavba nejde, už tak je malý. Dům je starý cca 80 let a byla to bývalá prodejna, proto tak blbá dispozice. Rozpočet cca 130 tisíc. V obýváku místo dveří je už okno. Předem díky za rady.
Odpovědět

Odpověď na příspěvek od malystavitel:

Ahoj, Potřebujeme v domě přidat další místnost - …
@malystavitel V tomto prípade by som sa asi pozrel, či by sa nedalo presťahovať niekam inam a tento dom predať. Nič, čo mi napadá vo výsledku nie je dobré. Ale pýtali ste sa na presun kuchyne, konkrétne odpadov. To sa samozrejme dá, ale má to svoje obmedzenia. Sklon trubky musí byť minimálne 2 cm/m, ideálne tak 4-5 cm/m. Ťahať to môžete stenou, predstenou alebo podlahou, ak ju dokážete vysekať tak hlboko. Všetko ostatné (voda, elektrika) sa dá rozťahať ako chcete.
Odpovědět
A co jít do patra? Předělat pudu nebo přistavět patro. Rozpočet ale na toto nestačí. Nebo jaké máte plány a vyhlídky do budoucna? Je to jen dočasně řešení nebo tam chcete zůstat trvale?
Odpovědět

Odpověď na příspěvek od roman_:

@malystavitel V tomto prípade by som sa asi pozre…
@roman_ odstěhovat se budeme moci cca za 10 let, dříve ne.
Odpovědět

Odpověď na příspěvek od azsinanecovzpomenu:

A co jít do patra? Předělat pudu nebo přistavět p…
@azsinanecovzpomenu patro by nás vyšlo na 600-800 tis. Jasně že by to bylo nejlepší řešení. Dát to jen nad obývák ložnici, wc a dětsky pokoj,ale na to teď nemáme. Chtěli jsme se do pár let stěhovat, ale nejde to. V dané vesnici udělali stavebni uzávěru a budou měnit UP. Takže tak na 10 let je to pasé.
Odpovědět
1
Pro přidání příspěvku se musíte přihlásit.
Přesunutím fotek můžete změnit jejich pořadí

Nenašli jste co jste hledali?