Návrh bungalovu 5+kk do L

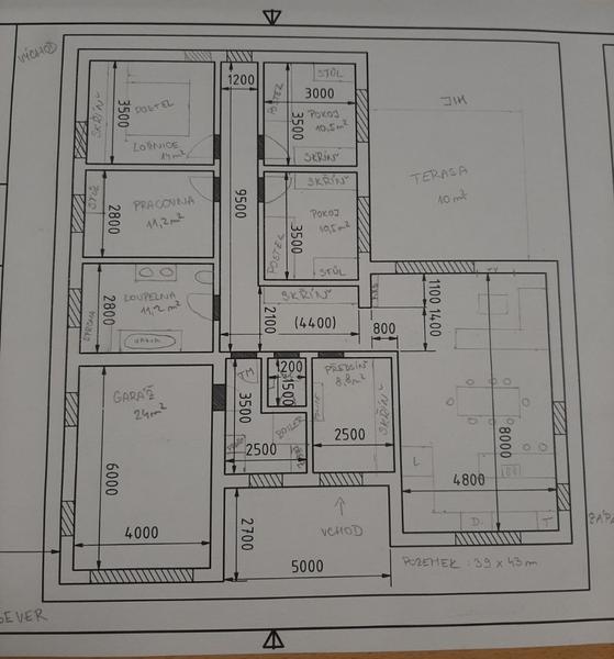
Dobrý den, chtěla bych Vás poprosit o názory a připomínky k našemu nákresu (dveře a okna jsou pouze orientační). Dům bude jednopatrový, na pozemku o velikosti 39x43. Návrh stále měníme a budeme rádi za Vaše zkušenosti či rady. Děkuji moc
Odpovědět
Mě se zdá takhle z nákresu hrozně malinkatý prostor pro obývací pokoj. Zatímco jídelní prostor není plně využitý. S krbem sice nemám osobní zkušenost, ale na nákresu je také takový malý. Rozhodně si nejsem jistá dětskými pokojíčky na terasu. Při večerním posezení to bude děti rušit. Prohodila bych nějak s ložnicí a pracovnou. Ale to by byla zase rušivá koupelna u pokoje pro děti. Chodba se mi zdá hrozně dlouhá. Zbytečně nevyužitý prostor. Zkrátila bych jí a metry využila třeba pro menší šatnu. A chybějící okno nahradila světlovodem. 9,5m dlouhou chodbu jedno okno na konci neprosvětlí.
Odpovědět

Odpověď na příspěvek od max_da:

Dobrý den, chtěla bych Vás poprosit o názory a př…
@max_da ta 10m chodba k ničemu (max tak bowling) vás vyjde jen tak na nějakého půl milionu
Odpovědět

Odpověď na příspěvek od max_da:

Dobrý den, chtěla bych Vás poprosit o názory a př…
@max_da Obývačku by som vymenil s kuchyňou. Takto je z odpočinkovej zóny križovatka. So všetkým budete chodiť cez obývačku a na terasu dokonca popred telku. Plus sa bude na telke lesknúť portál na terasu. Ďalej by som dal kúpeľňu čo najbližšie ku kuchyni a záchodu. Čím menej rozvodov teplej vody, tým lepšie. Takto budete buď odpúšťať kvantá vody alebo bude nutná recirkulácia, čo je dosť drahé na prevádzku. Kvôli tepelným stratám z trubiek budete za ohrev teplej vody platiť kľudne o 10-15 tisíc ročne viac. Časť toho tepla sa v zime zúžitkuje, ale mimo topnú sezónu nič. Celkovo je barák dosť členitý, očakávajte cenu (na kľúč) tak 8-10 M, už len strecha na toto bude tak 800 tis minimálne.
Odpovědět

Odpověď na příspěvek od m2s:

Mě se zdá takhle z nákresu hrozně malinkatý prost…
@m2s tak ale co zas potřebuješ pro obývací prostor? hlavně ať se ti tam vejde návštěva přes chmurné dny. přes léto budete sedět na terase :-)
Odpovědět
Profilova fotka

Odpověď na příspěvek od max_da:

Dobrý den, chtěla bych Vás poprosit o názory a př…
@max_da vyměňte ten obývací pokoj s kuchyní. jak psal i výše roman je to praktičtější.
Odpovědět
Já bych srovnal garáž, vchod a obývákokuchyň do jedné úrovně. Větší zádveří, TM i obyvákokuchyň se hodí. Dělat členitou desku a střechu nemá smysl a akorát to vyjde draho. Zvažte, jestli stačí pouze jedna koupelna (záleží na osazenstvu v domě).
Odpovědět
Nevím, jestli bych něco měnil. Mně to takhle na první pohled přijde ok 😀
Odpovědět
Dobrý den, též bych prohodila obývací pokoj s kuchyní (v rámci Vašeho soukromí i ušetřených kroků, až budete cokoliv vynášet na terasu). Chodbu máte až moc dlouhou. Já osobně bych hned za dveřmi do pokoje/ložnice udělala příčku a místo bych využila jako šatnu k ložnici :)
Odpovědět

Odpověď na příspěvek od smokemom:

@max_da ta 10m chodba k ničemu (max tak bowling) …
@smokemom alespoň si mají kde vystavit rodinné fotky :-D
Odpovědět
1
Pro přidání příspěvku se musíte přihlásit.
Přesunutím fotek můžete změnit jejich pořadí

Nenašli jste co jste hledali?