Malý bungalov 4KK bez chodby - názor?

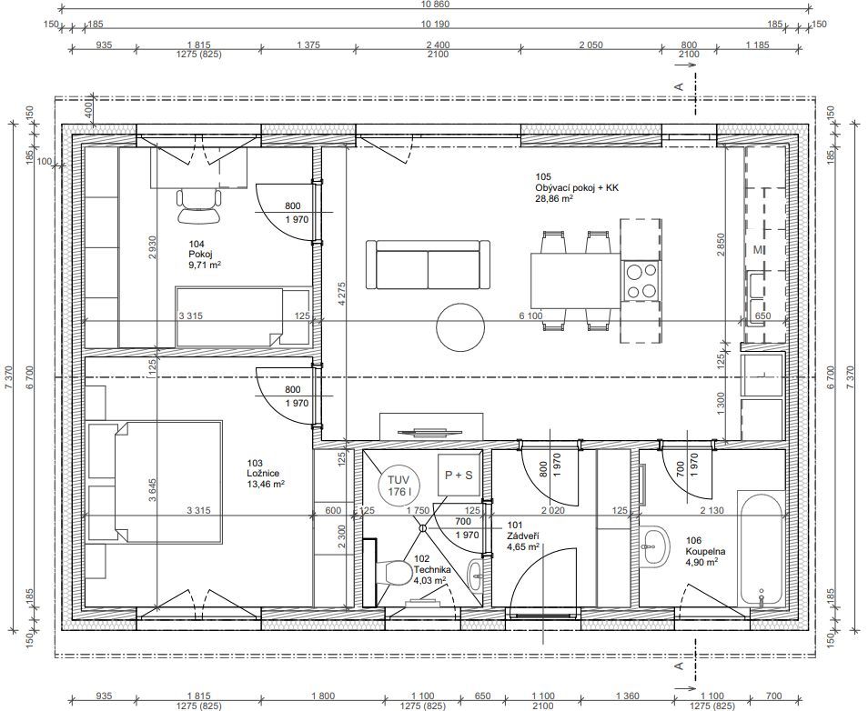
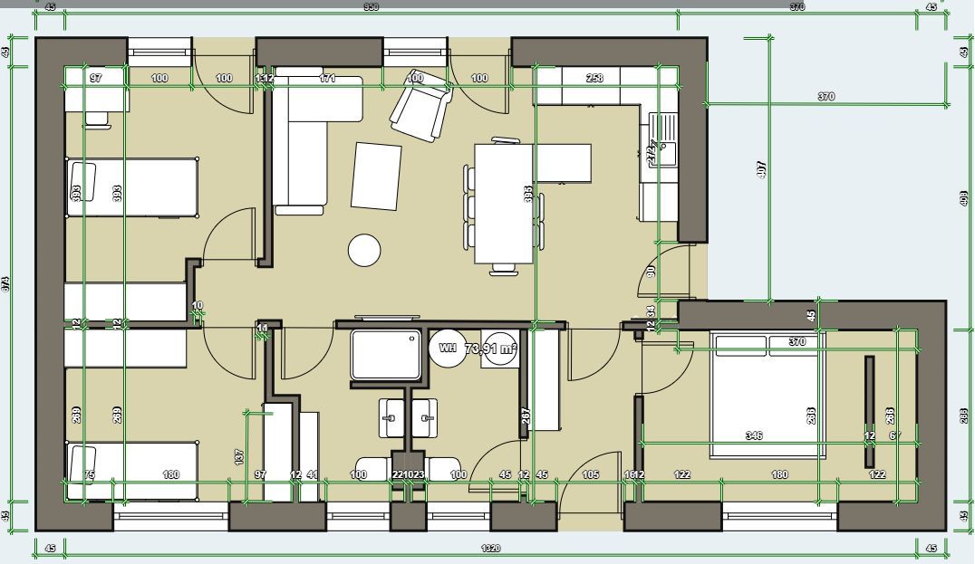
Zdravím stavebníci, chtěla bych si splnit dlouholetý sen a postavit malinký domek pro sebe, svého synka a ten poslední pokoj bych chtěla pro maminku, kterou si k sobě plánuji vzít na stáří. Nově mě napadlo, že spojím koupelnu s technickou, protože mi ty další dveře ušetří místo a hlavně tam budu chodit jen já (s prádlem), příp. opravář na tepelko. Chci otevřený prostor, přístup k WC a sprše z venku. Dole je silnice a je to severozápad, vpravo nahoře zastřešená terasa. Hodně řeším vzdálenost TČ od dřezu/sprchy/umyvadla - nynější zkušenost, musím odpustit dva kbelíky studené, než teče teplá do sprchy. Moc děkuji za názory a zkušenosti s propojením koupelny a TM :-)
Odpovědět
1
2
Profilova fotka
je to nejake divne jak jsou vsechny pokoje na jedny dvere v hlavni mistnosti. bude tam hlucno a pocit nesoukromi. vzdalenost vyvodu od zdroje tepla se da jednoduse resit cirkulaci. tak to mame. a nemusi to cirkulovat porad, jen podle nastaveni/systemu jaky zvolite (napr u nas senzor pritomnosti v urcitych hodinach)
Odpovědět

Odpověď na příspěvek od stavimsisen:

Zdravím stavebníci, chtěla bych si splnit dlouho…
@stavimsisen za mě je to v pořádku, jako v bytě a taky tak žije velká část společnosti. Navrhla bych zvětšit okno v obýváku u gauče, ať je to více prosvětlené. Koupelna a dveře do technické v jednom? Žádný problém.
Odpovědět

Odpověď na příspěvek od ktz:

je to nejake divne jak jsou vsechny pokoje na jed…
@ktz Jenže ta cirkulace je další spotřebič energie a také další věc, která se může pokazit... jak máte daleko TČ od dřezu/sprchy (proč jste šli do cirkulace)?
Odpovědět

Odpověď na příspěvek od artep1987:

@stavimsisen za mě je to v pořádku, jako v bytě a…
@artep1987 Moc děkuji za povzbudivá slova :-) Rozměry fasádních výplní ještě nejsou finální, o zvětšení jsem uvažovala.
Odpovědět

Odpověď na příspěvek od ktz:

je to nejake divne jak jsou vsechny pokoje na jed…
Já se přidám ke @ktz. Vstupy do pokoju z hlavní místností, za mě ne. Večer to bude hodně omezující, např. když půjde někdo spát. Sledování tv. Každá návštěva, ať se vypakuje co nejdříve, protože bude rušit toho, kdo bude v pokoji ap. To stejné každé ráno. Kdo bude ranní ptáče, bude budit ostatní. Nevím, jestli vstup do koupelny a na wc je možný takto z kuchyně. Pokud to tak projde, doporučuju si pořídit i ventilátor, který pomůže lépe vytáhnout pachy z wc. Jen okno na to nestačí.
Odpovědět
Domek je sice bez chodby, ale tu chodbu jste vlastně udělala z hlavní místnosti. Bude to takový průchoďák, mně se to nelíbí.
Odpovědět

Odpověď na příspěvek od stavimsisen:

@artep1987 Moc děkuji za povzbudivá slova :-) Roz…
@stavimsisen nevím, zda se má cenu tady ptát. Pokud chcete malý domek a máte malý rozpočet je to víc jak dostačující, zvlášť pokud pak budete na stáří sama. Pokud je k tomu ještě pěkná zahrada s posezením, tak úplně super. Vodu nechte jak je, je to kousek a levnější odpustit trochu vody než řešit cokoli technicky dalšího (což se musí časem měnit). Pokud na stáří i babička, tak klidně zvětšte sprchu, při pohybovém omezení potřeba. U nás doma máme technickou i menší (jen plynový kotel, bojler a pračka + sušička na sobě a vedle malý mrazák. Pokud ne očekáváte velké návštěvy, tak určitě menší stůl ke kuchyni, případně rozkládací. Jinak bohatě stačí pro 4 a bude i místo na malý ostrůvek. A jasně, jak píší někteří, že by chtěli větší chodbu, já bych chtěla třeba šatnu, ale místo ani peníze už nebyly 😀 a nebudu tady vypisovat, co dalšího by se mi v domě líbilo. Nakonec jsme tři a žije se nám více než dobře a i když máme tři pokoje, spíme všichni v jednom a navzájem se v rodině nerusime.
Odpovědět
Je na vašem zvážení, jak moc zvládáte (a v budoucnu budete zvládat) přenášení hluku. Ta absence chodby bude opravdu v reálu znamenat, že pokud bude někdo ze zmíněných chodit brzy spát a jeho/její sluch bude v pořádku, tak bude ta obývací část rušit jejich spánek. Nebo naopak se může stát, že babička už nebude dobře slyšet/nebude moct spát v noci a bude si chtít osolit tv v pokojíku = bude rušit všechny okolo. Druhá věc počítám, že budete chtít mít nějaký svůj klid/prostor dívat se na věci nebo řešit věci, které nepotřebuje slyšet/vidět dítě a takhle kdykoliv se probudí, aby se šel vyčůrat, tak to budete řešit a ta samotná cesta ho asi i víc probere, protože projde rušným prostem místo mnžouráním chodbou na wc a zas zpět. Ale tohle všechno jsou subjektivní věci, jen to berte na zvážení. Kdyby vás to trápilo a máte možnost dům rozšířit: Rozšiřte tu horní část domu (pokojik, obývak), aby vznikla chodba do koupelny z pokojíčků a nechat na hl. místnost napojenou jen ložnici, kde budete vy, tak to vyřeší asi všechno (i ty otevřený dveře z terasy, co by blokovali ložnici). V pokojíčku nahoře by vznikla možnost na další úložný prostor, což se pro staršího člověka s pomůckama může hodit a zároveň by to byla zvuková bariera na dětský pokoj.
Odpovědět

Odpověď na příspěvek od stavimsisen:

Zdravím stavebníci, chtěla bych si splnit dlouho…
@stavimsisen chcete malinký domek a budete stavět "panelakový byt" ... za mě ne a hlavně, jak píší ostatní, zásadní problém bude hluk v pokojích...
Odpovědět
Dům o velikosti 80 m2. Je vidět snaha co nejvíce ušetřit. Nepříjde mi ale šťastné mít jen jeden záchod a to ještě v koupelně a to ještě koupelna slouží jako vstup do technické místnosti. Do technické už bych nedával skříňky, jinak se nevymotáte s pračkou nebo TČ.
Odpovědět
Já bych vzal v potaz negativní info zde napsané. Něco na tom je. Ale mě by nejvíc vadil malý obývák, absence tv (na filmy). Dále bych se zamyslel nad zastřešenou terasou takto integrovanou do domu. Bude terasa součástí i základové desky? Pakliže ano, stavíte vlastně drahý vnitřní prostor, který pak bude venku. Možná by stálo za to terasu udělat někde bokem a prostor terasy přičlenit do půdorysu domu. O moc víc by se to v takové situaci neprodražilo.
Odpovědět

Odpověď na příspěvek od stavimsisen:

Zdravím stavebníci, chtěla bych si splnit dlouho…
@stavimsisen Staviate tak trochu byt, ako tu zaznelo, ale rozhodne bude lepšie toto so záhradou ako toto v paneláku. Ale pozor na jednu vec. Do bytu sa vchádza z chodby, ktorá môže byť špinavá a nevadí to. Tu mi chýba aspoň trochu zádveria na boty a bundy, nejaká rohožka , keď bude mokro. Prípadne sa taká zóna dá urobiť aj na terase, len sa s tým musí počítať. Inak určite by som terasu od domu oddelil, čo sa týka základovej dosky, ale i tak by som terasu normálne podbetónoval ako dom, nie je to tak drahé ako tu teraz strašia, teraz som betónoval 20 m2 terasu a vyšlo to do 20 tis. so všetkým. To je na celom baráku nič. Čo ale v bytoch býva a tu nie je, je samostatný záchod, to by som tam dal. Dá sa to zvládnuť aj takto, ale bolo by to pohodlnejšie. Čo sa týka teplej vody, ak to dáte šikmo najkratšou cestou, bude to v pohode. A aby ste z malého pôdorysu vyťažili maximum a vyriešili hluk, doporučujem čo najtenšie steny a priečky buď z betónových panelov alebo z VPC.
Odpovědět

Odpověď na příspěvek od artep1987:

@stavimsisen nevím, zda se má cenu tady ptát. Pok…
@artep1987 To jste napsala moc krásně, velmi za to děkuji :-) Už jsem oželila spíž a venkovní WC, nemluvě o nesplněném snu o zimní zahradě. S malým zatím také spíme v jedné posteli, ale návštěvy k nám jezdí větší a maminka i na několik dní, protože bydlí daleko. Ano, tu sprchu, resp. koupelnu ještě předělám, sprcha musí být lépe přístupná, stejně tak WC. Technická bude také sklad - mám strašných věcí (archiv vzpomínek, ale spousta věcí se při stěhování vytřídí :-D) Ještě jednou děkuji moc za povzbudivá a milá slova :-)
Odpovědět

Odpověď na příspěvek od rumcajk:

Já bych vzal v potaz negativní info zde napsané. …
@rumcajk Nn, základovka nebude pod terasou, jen v rohu bude trám, který bude držet střechu. Myslím, že jsem dost skromný a nerozmazlený člověk - když to porovnám s tím, v čem jsem vyrůstala a v čem maminka bydlí dodnes - na WC to má od postele 15 m a do koupelny ještě o 7 m dál :-) A když si vzpomenu v čem bydlí dodnes moje bývalá tchýně :-D Žádný dům není dokonalý a za tímto návrhem bylo několik přednávrhů - 2 WC, spíž, venkovní WC, úplně spojená technická s koupelnou... Ale potřebuji co nejmenší zastavěnou plochu (kvůli ceně).
Odpovědět

Odpověď na příspěvek od roman_:

@stavimsisen Staviate tak trochu byt, ako tu zazn…
@roman_ Vstupní chodba je vlevo dole :-) Ony jsou dveře skoro všude, ale to jen kvůli prosvětlení a aby se dalo vyjít na terasu i z pokoje a ty spodní dveře do koupelny jsou kvůli přístupu k WC a sprše z venku - budu hodně času trávit na zahradě a určitě i s pejskem a domů budu chodit jako "prasátko" :-) To druhé WC bych taky brala, ale vůbec nevím, kam bych ho dala, jedině dát zádveří "ukousnutím" ložnice a na místo zádveří dát samostatné WC. Takovou verzi jsem taky měla předkreslenou, ale asi jsem si ji neuložila a nebo ji mám doma. Tuto verzi, co přikládám mi zkritizovali, že mám WC hned za sebou - ale jedno je přístupné z venku přes zádveří a druhé je z obytného prostoru...
Odpovědět
Ještě přikládám variantu se samostatným WC, ale přijde mi, že jaksi musím mít 3 umyvadla (rozhodně u každého WC), a pak koupelna bez umyvadla mi přijde divná :-D
Odpovědět
Článek se načítá

Odpověď na příspěvek od stavimsisen:

Ještě přikládám variantu se samostatným WC, ale p…
@stavimsisen Ten vchod som si nevšimol, moja chyba. Každopádne som myslel samostatné WC, ale iba jedno na celý dom. Na takto malý to bohate stačí, proste nebudú ľudia vysedávať s mobilom na záchode. Ale ak by to bolo v kúpeľni a niekto sa bude sprchovať, vyblokuje tým jediný záchod, čo je nepríjemné. Naši to presne tak majú a žiť sa tak dá aj s návštevami, ale nie je to tak pohodlné a myslím, že to zas toľko miesta navyše nezaberie.
Odpovědět
Profilova fotka
doporucil bych dvoje posuvne dvere, je to cca 20tis navic ale podle me to spli celkem ten ucel zvyseni soukromi a jen jeden pokoj zustane na jedny dvere do obyvaku.
Odpovědět

Odpověď na příspěvek od stavimsisen:

Ještě přikládám variantu se samostatným WC, ale p…
@stavimsisen osobně se mi nejvíc líbí předposlední varianta. Jen bych posunul dveře mezi zádveřím a obývákem až za dveře do pokoje. Alespoň do jednoho pokoje by se nechodilo přes obývák. Nevím jak to máte s okolím, ale spíše bych postavil čistý obdélník. Je to jednodušší a za stejné peníze dostanete větší obytnou plochu
Odpovědět

Odpověď na příspěvek od stavimsisen:

Zdravím stavebníci, chtěla bych si splnit dlouho…
@stavimsisen Vsetky 3 vase navrhy maju podla mojho nazoru rovnake nedostatky: - zbytocne clenity podorys (ako pise zubr487 najekonomickejsi je cisty obdlznik) - vstup do WC z obyvacky len cez 1 dvere - vstup do izieb len cez hlavny obytny priestora, pristup z izieb do WC a kupelne len cez obyvak - hluk v izbach - vzajomne rusenie sa pri odlisnom dennom rezime - strata sukromia v pripade navstevy - Vasej, alebo v buducnosti aj synovej :) - stazeny pristup maminky do kupelne s WC Urcite by som preriesila vstup do WC cez 1 dvere priamo z obyvacky. Ostatne je vec zvyku a preferencii...
Odpovědět
Profilova fotka
Tak tak, jen pronesu kacířskou myšlenku. Pokud by byl barák do obedlníku namísto "L", tzn. vyplnit tu asi terasu. Tak to vyjde zhruba na stejně, ale bude k dispozici dalších cca 11 m2 užitné plochy, která by vyřešila 90 % nedostatků. Klozet přístupný z obytné místnosti přes jedny dveře je prasárna nejhrubšího zrna a nejspíš to úřad ani nepovolí.
Odpovědět

Odpověď na příspěvek od pyramis:

Tak tak, jen pronesu kacířskou myšlenku. Pokud by…
@pyramis jo tak jsem to myslel. Tím zarovnáním do obyčejného obdélníku se výrazně zjednoduší střecha. Praktický za stejné peníze se zvětší vnitřní plocha a nebude nutné dělat podobne omezené půdorysy
Odpovědět

Odpověď na příspěvek od zubr487:

@pyramis jo tak jsem to myslel. Tím zarovnáním do…
@zubr487 @pyramis Střecha zůstane jednoduchá (v rohu terasy bude dřevěný sloup, který bude držet střechu) a budu mít krytou terasu přímo za kuchyní :-)
Odpovědět
A co takto? U návrhu se samostatným WC mi vadilo, že bych "musela" mít v domě 3 umyvadla - u každého WC a koupelna bez umyvadla mi přišla divná :-D
Odpovědět

Odpověď na příspěvek od stavimsisen:

A co takto? U návrhu se samostatným WC mi vadilo,…
@stavimsisen Z vlastní zkušenosti vím, že mládežnici si budou vodit kamarády/kamarádky a je daleko příjemnější jak pro ně, tak i pro vás, pokud nebudou chodit obývákem. Tato varinata je z tohoto hlediska nejhorší. Na WC stačí malé úmývátko to nemusíte řešit. Jen bych doporučil dát si ke každému WC bidetovou spršku. Krytou terasu za kuchyní můžete udělat i v případě obdélníkového půdorysu. Naopak ji můžete udělat větší a je příjemné udělat si vstup na terasu i z ložnice. Nevím proč tam chcete ten L půdorys. Z hlediska ceny zdiva je to stejné, máte problémy s návrhem rozvržení. To děláte jen z důvodu kryté terasy ? Já mám terasu asi 7x5m a je to skoro málo.
Odpovědět
@stavimsisen Máme dva samostatné záchody (v kúpelniach ani jeden) a u žiadneho nie je umývadlo. Ani keby to robím znovu, ho tam nedám, prišlo nám to zbytočné, zavadzalo by tam. Takto môže byť pôdorys záchoda 110x85 cm a je to viac než dostatočné.
Odpovědět

Odpověď na příspěvek od roman_:

@stavimsisen Máme dva samostatné záchody (v kúpel…
@roman_ Mě vadí chytat na kliku tou "špinavou" rukou po použití WC. Ale toto pramení z dětsví, my jsme měli na WC umývátko, a proto jsem zvyklá odcházet odmalička z WC s čistýma rukama :-)
Odpovědět

Odpověď na příspěvek od zubr487:

@stavimsisen Z vlastní zkušenosti vím, že mládežn…
@zubr487 Zalíbil se mi tento projekt malého domu (viz příloha), ale chtěla jsem pokoj navíc pro maminku, proto vzniklo "Elko" s krytou terasou. Kdybych zastavěla celý obdélník, krytou terasu už nikdy mít nebudu - nebudu na ni už mít prostředky. Navíc, nechci vytápět zbytečně velký prostor. Když budou kamarádi/kamarádky chodit přes obývák, budu mít alespoň přehled, co se děje :-D S bidetovou sprškou počítám - původně jsem chtěla bidet, ale pak jsem zjistila, že existuje sprška :-)
Odpovědět
Profilova fotka

Odpověď na příspěvek od stavimsisen:

@zubr487 Zalíbil se mi tento projekt malého domu …
@stavimsisen Tak budeš mít nekrytou terasu, taky se s tím dá žít a nepřijdeš o nebe a budeš mít víc světla v kuchyni. ;-) Jinak už já už jsem starý na novoty jako barák bez chodby a záchod bez umyvadla. Ale je fakt, že asi i v dřezu si pak člověk může ty ruce umýt :-D
Odpovědět
Profilova fotka
Podívej se do mého alba, kde mám půdorys, celkově má dům zastavěnou plochu 144m2, užitnou 115m2. Možná tě to inspiruje. Máme z ložnice malou koupelnu, pouze sprcha a umyvadlo, pro tebe by to mohlo být pokoj pro hosty/babičku. U dětských ložnic jsou díky malé chodbě šatny, jsou úplně super, co tam vejde věcí. Co se týče technické a rozvodů, máme je opravdu nedaleko a teplá voda je do pár vteřin. Je to kvůli tomu, že máme na trubky pro vodu udělaný rozvaděč podobně jako u podlahového topení a tak voda necirkuluje, ale jde přímo od bojleru do baterie, takže ta doba, než přiteče teplá, je krátká.
Odpovědět
1
2
Pro přidání příspěvku se musíte přihlásit.
Přesunutím fotek můžete změnit jejich pořadí

Nenašli jste co jste hledali?